До 22 апреля в Казани закрывается движение по пр. Победы
04 апр 2018
2018-04-04 10:56:55
2018-04-04 10:56:55
С 4 апреля в Казани частично ограничили движение по пр.Победы
autotat.ru
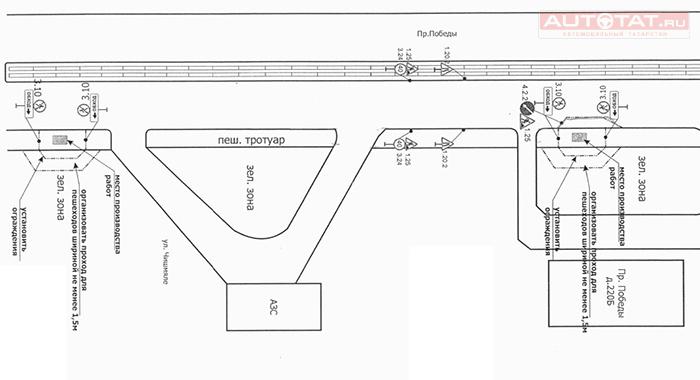
С сегодняшнего дня до 22 апреля включительно ограничат движение транспорта в районе здания №220Б по пр. Победы. Об этом сообщают в Исполкоме Казани.
На данном участке дороги запланировано строительство кабельной канализации, поэтому всем автомобилистам нужно быть предельно внимательными и следовать требованию временных дорожных знаков.
Warning: fopen(/home/u513226/autotat.ru/www/_logs/er260424.log): failed to open stream: Disk quota exceeded in /home/u513226/autotat.ru/www/_includes/__api.php on line 606
Warning: fopen(/home/u513226/autotat.ru/www/_logs/er260424.log): failed to open stream: Disk quota exceeded in /home/u513226/autotat.ru/www/_includes/__api.php on line 606
Warning: fopen(/home/u513226/autotat.ru/www/_logs/er260424.log): failed to open stream: Disk quota exceeded in /home/u513226/autotat.ru/www/_includes/__api.php on line 606
Warning: fopen(/home/u513226/autotat.ru/www/_logs/er260424.log): failed to open stream: Disk quota exceeded in /home/u513226/autotat.ru/www/_includes/__api.php on line 606
Warning: fopen(/home/u513226/autotat.ru/www/_logs/er260424.log): failed to open stream: Disk quota exceeded in /home/u513226/autotat.ru/www/_includes/__api.php on line 606
Warning: fopen(/home/u513226/autotat.ru/www/_logs/er260424.log): failed to open stream: Disk quota exceeded in /home/u513226/autotat.ru/www/_includes/__api.php on line 606
Warning: fopen(/home/u513226/autotat.ru/www/_logs/er260424.log): failed to open stream: Disk quota exceeded in /home/u513226/autotat.ru/www/_includes/__api.php on line 606
Warning: fopen(/home/u513226/autotat.ru/www/_logs/er260424.log): failed to open stream: Disk quota exceeded in /home/u513226/autotat.ru/www/_includes/__api.php on line 606
Warning: fopen(/home/u513226/autotat.ru/www/_logs/er260424.log): failed to open stream: Disk quota exceeded in /home/u513226/autotat.ru/www/_includes/__api.php on line 606
| (не представился)
Оставьте свой комментарий:
Перед добавлением отзыва необходимо оценить материал страницы ( Оценить )