Логин: Пароль:
Регистрация

В Казани закрывается для движения улица Гагарина

19 ноя 2015
2015-11-19 15:07:29

В Казани временно ограничат движение по ул.Гагарина

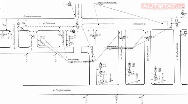
В Казани на время ограничат движение по улице Гагарина. В комитете внешнего благоустройства города отметили, что там запланированы работы по капитальному ремонту газопровода.

В связи с этим проезжая часть ул. Гагарина на участке от ул. Совнархозовская до ул. Комбинатская будет полностью закрыта с 19 по 30 ноября, а с 1 по 15 декабря частично ограничат движение на участке от ул. Совнархозовская до ул. Монтажная.

Исполнительный комитет Казани просит всех автомобилистов с пониманием отнестись к временным ограничениям, следовать требованиям дорожных знаков и заранее прокладывать маршрут движения.

Схема организации дорожного движения на ул. Гагарина

Поделиться в соцсетях:
Тэги: #Казань   #Авто   #дороги  
Поставьте оценку:
Комментарии:

Warning: fopen(/home/u513226/autotat.ru/www/_logs/er260424.log): failed to open stream: Disk quota exceeded in /home/u513226/autotat.ru/www/_includes/__api.php on line 606

Warning: fopen(/home/u513226/autotat.ru/www/_logs/er260424.log): failed to open stream: Disk quota exceeded in /home/u513226/autotat.ru/www/_includes/__api.php on line 606

Warning: fopen(/home/u513226/autotat.ru/www/_logs/er260424.log): failed to open stream: Disk quota exceeded in /home/u513226/autotat.ru/www/_includes/__api.php on line 606

Warning: fopen(/home/u513226/autotat.ru/www/_logs/er260424.log): failed to open stream: Disk quota exceeded in /home/u513226/autotat.ru/www/_includes/__api.php on line 606

Warning: fopen(/home/u513226/autotat.ru/www/_logs/er260424.log): failed to open stream: Disk quota exceeded in /home/u513226/autotat.ru/www/_includes/__api.php on line 606

Warning: fopen(/home/u513226/autotat.ru/www/_logs/er260424.log): failed to open stream: Disk quota exceeded in /home/u513226/autotat.ru/www/_includes/__api.php on line 606

Warning: fopen(/home/u513226/autotat.ru/www/_logs/er260424.log): failed to open stream: Disk quota exceeded in /home/u513226/autotat.ru/www/_includes/__api.php on line 606

Warning: fopen(/home/u513226/autotat.ru/www/_logs/er260424.log): failed to open stream: Disk quota exceeded in /home/u513226/autotat.ru/www/_includes/__api.php on line 606

Warning: fopen(/home/u513226/autotat.ru/www/_logs/er260424.log): failed to open stream: Disk quota exceeded in /home/u513226/autotat.ru/www/_includes/__api.php on line 606
| (не представился)

Оставьте свой комментарий:

Перед добавлением отзыва необходимо оценить материал страницы ( Оценить )


Warning: fopen(/home/u513226/autotat.ru/www/_logs/er260424.log): failed to open stream: Disk quota exceeded in /home/u513226/autotat.ru/www/_includes/__api.php on line 606