Логин: Пароль:
Регистрация

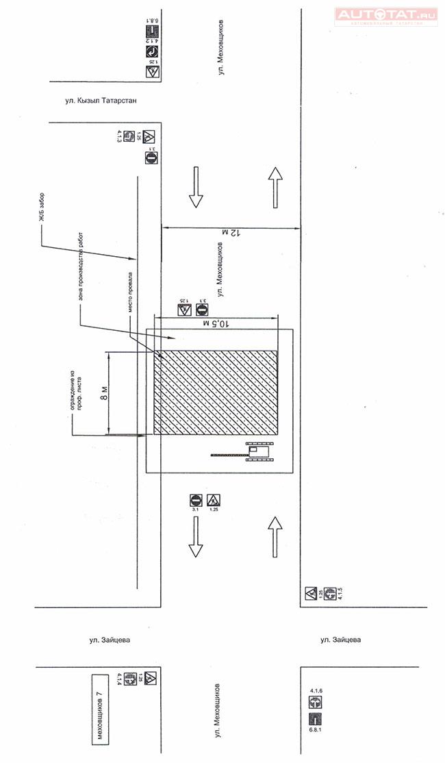
С 8 июня полностью закрывается движение по ул. Меховщиков

06 июн 2016
2016-06-06 09:03:06

В Казани до 25 сентября закрывается движения автотранспорта на ул. Меховщиков

 

С 8 июня по 25 сентября планируется полностью ограничить движение автотранспорта на улице Меховщиков. Об этом сообщает пресс-служба Министерства транспорта и дорожного хозяйства.

Движение перекроют в районе дома №17 по улице Зайцева. На указанный временной период там запланировано строительство сетевой ливневой канализации.

Напомним, что до 13 июня также частично перекрыли дорогу по улице Университетская, а до 26 июня - поэтапно закрывается ул. Патриса Лумумбы.

Схема организации дорожного движения: 

Поделиться в соцсетях:
Тэги: #Казань   #дорога   #Авто  
Поставьте оценку:
Комментарии:

Warning: fopen(/home/u513226/autotat.ru/www/_logs/er260424.log): failed to open stream: Disk quota exceeded in /home/u513226/autotat.ru/www/_includes/__api.php on line 606

Warning: fopen(/home/u513226/autotat.ru/www/_logs/er260424.log): failed to open stream: Disk quota exceeded in /home/u513226/autotat.ru/www/_includes/__api.php on line 606

Warning: fopen(/home/u513226/autotat.ru/www/_logs/er260424.log): failed to open stream: Disk quota exceeded in /home/u513226/autotat.ru/www/_includes/__api.php on line 606

Warning: fopen(/home/u513226/autotat.ru/www/_logs/er260424.log): failed to open stream: Disk quota exceeded in /home/u513226/autotat.ru/www/_includes/__api.php on line 606

Warning: fopen(/home/u513226/autotat.ru/www/_logs/er260424.log): failed to open stream: Disk quota exceeded in /home/u513226/autotat.ru/www/_includes/__api.php on line 606

Warning: fopen(/home/u513226/autotat.ru/www/_logs/er260424.log): failed to open stream: Disk quota exceeded in /home/u513226/autotat.ru/www/_includes/__api.php on line 606

Warning: fopen(/home/u513226/autotat.ru/www/_logs/er260424.log): failed to open stream: Disk quota exceeded in /home/u513226/autotat.ru/www/_includes/__api.php on line 606

Warning: fopen(/home/u513226/autotat.ru/www/_logs/er260424.log): failed to open stream: Disk quota exceeded in /home/u513226/autotat.ru/www/_includes/__api.php on line 606

Warning: fopen(/home/u513226/autotat.ru/www/_logs/er260424.log): failed to open stream: Disk quota exceeded in /home/u513226/autotat.ru/www/_includes/__api.php on line 606
| (не представился)

Оставьте свой комментарий:

Перед добавлением отзыва необходимо оценить материал страницы ( Оценить )


Warning: fopen(/home/u513226/autotat.ru/www/_logs/er260424.log): failed to open stream: Disk quota exceeded in /home/u513226/autotat.ru/www/_includes/__api.php on line 606